
你與好的布局可能就是差了一道門的步驟!門,登堂入室的第一要素,大多數人裝修時卻常常忽視它的存在,家裏僅僅改了一扇門,就能影響整體的幸福感與居住體驗,今天福熙防盜門和大家分享下如何測量:

一、了解防盜門
福熙防盜門15年專注中高端雙色防盜門和防盜防爆鎖的高新技術型羞羞在线视频,配有防盜鎖,在一定時間內可以抵抗一定條件下非正常開啟,具有一定安全防護性能並符合相應防盜安全級別的門。

俗話說,內行看門道,外行看熱鬧。首先一樘防盜門的設計、福熙雙色防盜門,正麵更漂亮、反麵好搭配,質感的好壞最先表現在外觀上,外觀細節精美、觸感舒服的門羞羞视频APP免费下载一般不會差;所以說這時候你要是有一手好的量門技巧與方法,今天和福熙防盜門一起來學習學習吧。

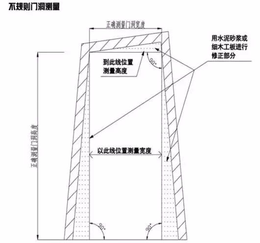
安裝門之前的門洞測量工作非常重要!第一手了解客戶的門洞現場,判斷定門尺寸,為客戶推薦可定製的款式,體現專業度和服務高效化尤為重要。

魯班尺▲ 水平儀▲




注:在測量過程中要注意地麵處理情況,要預留出合適的尺寸以備所需。門扇高度、門洞高度差額為5-10mm,門扇厚度標準為38mm和45mm,要和門框互相配合。
